MGR0062 - PER INFORMAZIONI E VISITE CONTATTARE IL NOSTRO CONSULENTE IMMOBILIARE MARCO AL 3470034777 ANCHE TRAMITE SMS-WHATSAPP.
--- ASTI - VIA ANGELO BROFFERIO 155 ---
--- ATTUALMENTE OCCUPATO - DISPONIBILE DAL 01/01/2026 ---
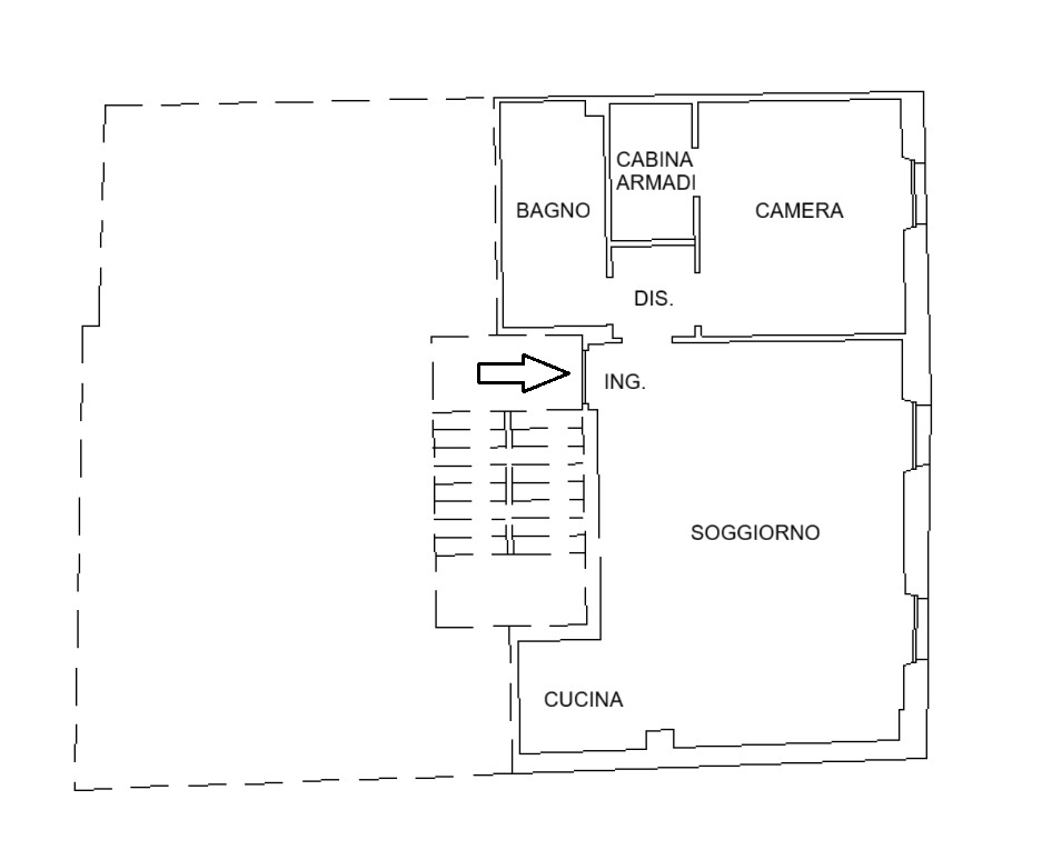
Nei pressi del centro cittadino in contesto signorile completamente ristrutturato a nuovo proponiamo al secondo piano senza ascensore, ampio e luminoso appartamento bilocale.
Si accede da porta blindata e con apertura elettronica sul grande soggiorno con vista sulla via, cucinino, disimpegno con ripostiglio a muro, servizio con doccia, camera da letto con cabina armadio. Lavanderia con lava/asciuga condominiale al piano sottostante.
Doppi vetri, porta blindata, tv in soggiorno, riscaldamento autonomo a pavimento con caldaia individuale, condizionatore con pompa di calore.
Sicuramente un appartamento di pregio con particolari finiture quali il pavimento in cemento, i muri con mattoni a vista ed il mosaico nel servizio.
Contratto Concordato 3+2. Canone 670€. Spese condominiali mensili 30€.
Tassazione in CEDOLARE SECCA: ZERO costi in fase di registrazione, rinnovi e chiusura, ZERO costi di bolli, Canone BLOCCATO, senza aumenti dovuti agli aggiornamenti ISTAT annuali, per tutta la durata del contratto.
E' richiesta fideiussione bancaria a garanzia della locazione.
Le informazioni riportate nell'inserzione hanno carattere informativo e non costituiscono vincolo contrattuale.
--- ASTI - VIA ANGELO BROFFERIO 155 ---
--- ATTUALMENTE OCCUPATO - DISPONIBILE DAL 01/01/2026 ---
Nei pressi del centro cittadino in contesto signorile completamente ristrutturato a nuovo proponiamo al secondo piano senza ascensore, ampio e luminoso appartamento bilocale.
Si accede da porta blindata e con apertura elettronica sul grande soggiorno con vista sulla via, cucinino, disimpegno con ripostiglio a muro, servizio con doccia, camera da letto con cabina armadio. Lavanderia con lava/asciuga condominiale al piano sottostante.
Doppi vetri, porta blindata, tv in soggiorno, riscaldamento autonomo a pavimento con caldaia individuale, condizionatore con pompa di calore.
Sicuramente un appartamento di pregio con particolari finiture quali il pavimento in cemento, i muri con mattoni a vista ed il mosaico nel servizio.
Contratto Concordato 3+2. Canone 670€. Spese condominiali mensili 30€.
Tassazione in CEDOLARE SECCA: ZERO costi in fase di registrazione, rinnovi e chiusura, ZERO costi di bolli, Canone BLOCCATO, senza aumenti dovuti agli aggiornamenti ISTAT annuali, per tutta la durata del contratto.
E' richiesta fideiussione bancaria a garanzia della locazione.
Le informazioni riportate nell'inserzione hanno carattere informativo e non costituiscono vincolo contrattuale.
Mappa
Contattaci
INFORMAZIONI EXTRA
AMBIENTI
| Soggiorno angolo cottura | |
| Cucina | |
| Ripostigli | 1 |
| Lavanderia |
LIVELLI & COMFORT
| Livelli | Piano intermedio |
| Piano numero | 2 |
| Aria condizionata | |
| Caldaia a condensazione | |
| Riscaldamento autonomo | |
| Riscaldamento a pavimento | |
| Porta blindata |
